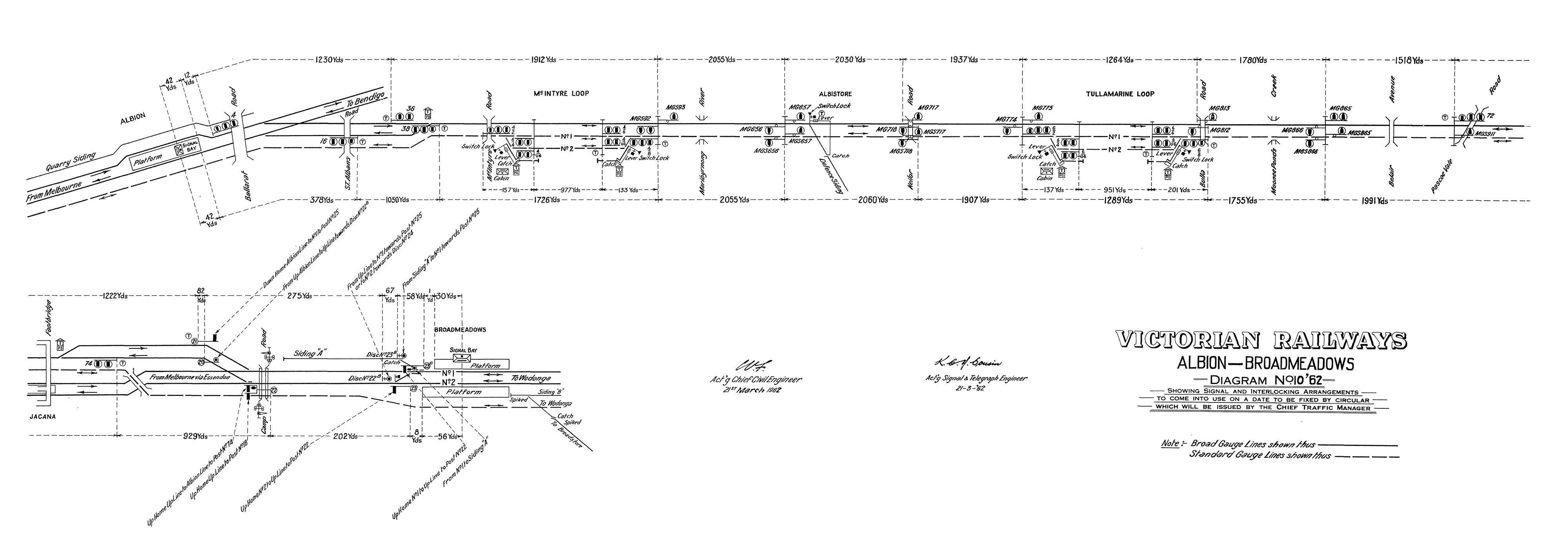
List Of Signal Diagrams
When looking for a particular location try the 
Click here for explanation of symbols used in signal diagrams
"Signal arrangement" diagrams differ from "signal diagrams" in that they were not widely distributed and their issue was not announced in the "Weekly Notice". They were generally of locations that were not interlocked.
Recent additions to this page are denoted by ***
THE USE OF SIGNAL DIAGRAMS ON THIS WEBSITE FOR COMMERCIAL GAIN IS PROHIBITED UNDER AUSTRALIAN COPYRIGHT LAW